
★コンシェルジュサービス利用可能!エアコン、カーテン全室設置(未使用)無償譲渡いたします
| 価格(税込) | 5,370万円 |
|---|---|
| 交通 | 西鉄バス『小笹団地東門』徒歩2分 |
| 所在地 | 福岡市中央区小笹4丁目78番1 福岡市中央区小笹4丁目5-13 Googlemapで見る |
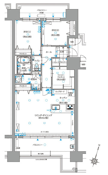
| 間取り | 2LDK |
| 本体設備 | オートロック、宅配BOX、モニター付インターホン、防犯カメラ |
| 各戸設備 | 食器洗浄乾燥器、追焚機能、24時間換気 |
| 間取内訳 | LDK19.6帖・洋室6帖・洋室5帖 | ||
|---|---|---|---|
| 専有面積 | 76.97㎡ | バルコニー面積 | 23.50㎡ |
| 構造・規模 | 鉄筋コンクリート造14階 2階部分 | ||
| 土地権利 | 所有権 | 用途地域 | 第一種中高層住居地域 |
| 築年月 | 2025年10月 | 総戸数 | 東街区208戸(全364戸) |
| 管理形態 | 全部委託 | 施工会社 | ㈱福田組 |
| 管理費 | 9,500円 | 修繕積立金 | 7,710円 |
| 駐車場 | 有り(管理会社要確認) | ||
| 現況 | 空室(未入居) | 引渡し日 | 即入居可 |
|---|---|---|---|
| 備考 |
・コンシェルジュサービス利用可 ・エアコン、カーテン全室設置(未使用)無償譲渡 ・町内会費など600円/月、NET 660円/月 |
||
| 担当者 | |||
| 情報更新日 | 2026年1月20日 | ||